Verkoop Tekening voor woningbouw

Een aspirant-koper van een nieuwbouwwoning of appartement wil zien wat hij koopt. Met een Verkoop Tekening (VK) is voor de potentiële koper in één oogopslag duidelijk hoe groot de ruimtes zijn en welke functie deze hebben. Van den Berg Bouwkundigen beschikt over de kennis en kunde om Verkoop Tekeningen te maken voor aannemers, architecten en vastgoedeigenaren.

Meer weten?

Neem contact op
Project afbeelding

Oog voor detail

In één oogopslag een werkbaar model

#hartvoordebouw

Project afbeelding

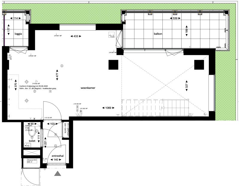
Van globaal tot gedetailleerd

Verkoop Tekeningen zijn er in verschillende gradaties. Het is aan de opdrachtgever om te bepalen hoe gedetailleerd deze moeten zijn. Voordat we aan de slag gaan beginnen we daarom met een gesprek over de wensen, eisen en verwachtingen.

Een Verkoop Tekening bevat sowieso een geveltekening en een plattegrond die inzicht geeft in de indeling van een woning of appartement, inclusief de afmetingen van de ruimtes. Indien gewenst kunnen er meer details worden toegevoegd, zoals de toe te passen materialen. Ook de aansluitpunten voor installaties, zoals stopcontacten, lichtpunten en afzuigpunten voor de ventilatie kunnen worden aangegeven op de Verkoop Tekening.

Project afbeelding

3D BIM-model, 2D Verkoop Tekeningen

Onze modelleurs maken een bouwproject op detailniveau in een 3D BIM-model. Het 3D-model is de basis voor de verkooptekeningen, die in 2D worden geleverd. Aan de hand van het 3D BIM-model kunnen ook alle gewenste visualisaties worden gemaakt, zoals artist-impressions en brochures.

Project afbeelding

Maak kennis met onze bouwkundige modellen

Van den Berg Bouwkundigen is een breed gespecialiseerd bouwkundig adviesbureau met veel ervaring in woningbouw en utiliteitsbouw. Naast de Verkoop Tekening (VK) kunnen wij ook een Definitief Ontwerp (DO), Technisch Ontwerp (TO) en het Uitvoeringsgereed Ontwerp (UO) maken.

Andere bouwkundige modellen

Team Bouwkundigen

Interesse in een Verkoop Tekening? Neem contact met ons op.

Neem contact met ons op

Na verzending ontvang je automatisch een bevestiging. Door een bericht te verzenden ga je akkoord met ons privacybeleid.